手振24袋倉頂除塵器
- 一、產品概述 手振24袋倉頂 除塵器 是一種手動清灰結構的 除塵設備 ,這種除塵器在采礦、冶金、建材、機械、化工、糧食加工等工礦企業廣泛用于過濾氣體中的細小的,非纖維性的干燥粉塵...
- 咨詢熱線:13833733360
-
手振24袋倉頂除塵器生產廠家介紹
【手振24袋倉頂除塵器廠家】泊頭市凈化除塵設備廠【20年經驗】,專業生產手振24袋倉頂除塵器|價格合理|型號全,質保2年、免費勘測選型設計提供圖紙參數。
手振24袋倉頂除塵器廠家可以根據工況、粉塵顆粒、粉塵濃度、來斷定除塵器的風量、風速、風機功率大小、安裝位置、安裝空間等一系列參數,我們根據以上以上參數來幫你設計、選型、提供結構圖紙、技術參數等,有貴公司審核后我們安排做。
我公司擁有:繪圖部、技術部、研發部、制作部、質檢部、裝配部、安裝部、采購部、銷售部、售后服務部等。
除塵設備制作排序:看圖下料、檢驗下料尺寸、車間焊接、組裝焊接、綜合檢驗、整體完成后試機、噴漆、新產品出爐、發貨、現場安裝、客戶驗收、竣工完成。
擁有設備:除塵骨架拉絲機,骨架焊接機、車床、沖床、剪板機、焊接機、卷管機、等。
擁有:除塵布袋制造車間、除塵骨架制造車間、除塵設備制造車間等。
我們是一條龍制作、銷售、售后服務、質量有保證、中間外協加工少、減少了設備成本、又能控制產品質量、價格合理。
我公司可以提供現場勘測、幫你設計選型、提供結構圖紙、工作原理、技術參數、售前、售后服務貼心。
-
手振24袋倉頂除塵器產品詳情
一、產品概述
手振24袋倉頂除塵器是一種手動清灰結構的除塵設備,這種除塵器在采礦、冶金、建材、機械、化工、糧食加工等工礦企業廣泛用于過濾氣體中的細小的,非纖維性的干燥粉塵或在工藝流程中回收干燥粉料的一種除塵設備。
倉頂除塵器在含塵濃度200毫米/立方料-3000毫克/立方米時;它的阻力不超過65公斤/平方米,它的除塵效率高達99%。
二、工作原理
倉頂除塵器的濾塵是通過濾袋進行的,濾袋材料起毛尼絨,當含塵空氣通過時,即可有效的使用固相與氣相分離開來,起毛的濾袋是一種多孔性的濾塵材料,當氣流通過時,所含微粒觸及濾袋外壁絨毛而發生旋轉,由于迷宮、碰撞篩濾作用、使氣流中的微粒吸附在濾袋上或沉降下來,凈化后的空氣即可排出,為了清除附著和沉入濾袋的灰塵,在每班通風機停止運行時(每隔約2-4小時)順序振動三組濾袋,每次振動20下左右。
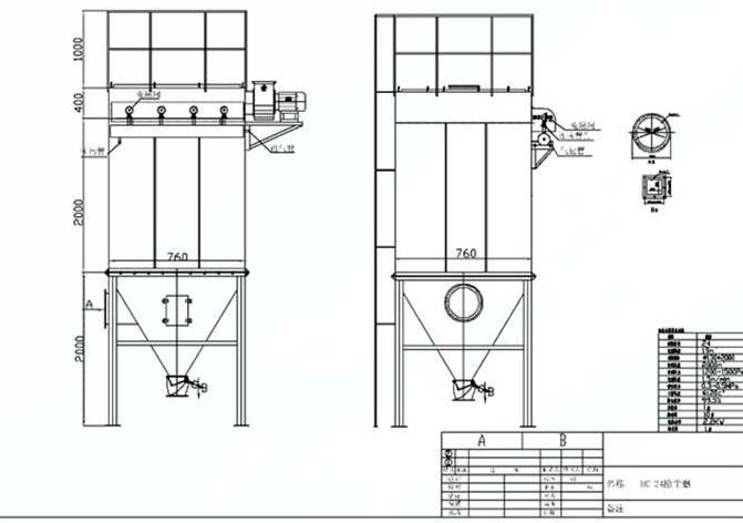
三、結構簡介
倉頂除塵器是一種方形可拆的金屬柜,底板上有24個嵌入圓形孔,它設有24條濾袋,分三組(每組8個)分別扎緊在上端3個振動器的吊架上,定時分別拉動三組吊架的牽動手柄,使濾袋阻留下來的灰塵降落在倉頂除塵器的方形金屬下端的料倉內。
-
手振24袋倉頂除塵器價格行情
【手振24袋倉頂除塵器價格】根據工況、粉塵顆粒、粉塵濃度、來斷定除塵器的風量、風速、風機功率大小、安裝位置、安裝空間等一系列參數。選用規格型號、過濾面積、過濾風速、除塵器配置等影響本除塵器價格。可以快速準確快速報價、報裸價、含稅含運費價格、價格合理、出廠價、批發價。
我們能提供手振24袋倉頂除塵器價格實時報價,根據現場的詳細參數免費提供方案與成本價格,執行批發價格。同等質量的手振24袋倉頂除塵器,我們能做到批發價格銷售發貨。價格特別針對與泊頭相鄰的天津、山東、河北訂貨 化工廠布袋除塵器 價格有優惠,補運費差價。
-
手振24袋倉頂除塵器結構圖紙
手振24袋倉頂除塵器結構圖紙免費提供,下面展示的是常見、常用的手振24袋倉頂除塵器結構圖紙,其它分多個型號規格,是由于網頁空間條件限制不能全部展示,大多數結構圖紙是根據現場的需要專門量身訂做的化工廠除塵器結構,上門測量是實地勘測的,提供貼切的手振24袋倉頂除塵器結構圖紙。







